SOLD
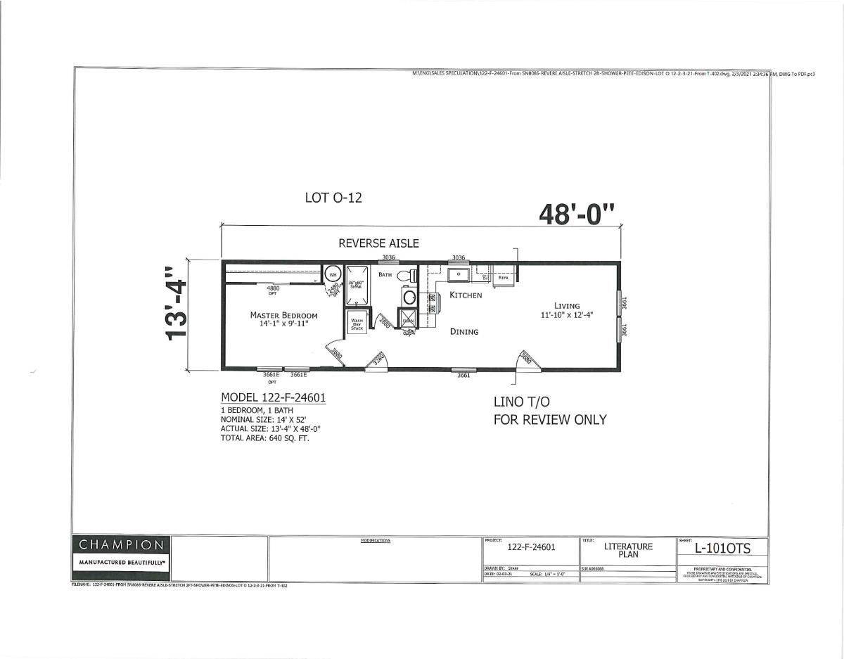
Lot O-12
SOLD
BEAUTIFUL ONE BEDROOM HOME
O-12 1 Bedroom 1 Bath Manufactured Home $95,000 Carteret, NJ
Carteret Mobile Park 1501 Roosevelt Ave Carteret, NJ 07008
$95,000
DESCRIPTION
Location: Lot O-12 in Carteret Mobile Park
Address: 1501 Roosevelt Ave, Lot O-12, Carteret, NJ 07008
Manufacturer: Redman Homes
Type: Pre-Owned Home
Bedrooms: 1
Baths: 1
Price: $95,000
Square Footage: 672 nominal
Size: 14 x 48 nominal
Year: 2021
Availability: Immediate “AS IS”
Parking: We have a one person - one vehicle restriction in the Lease, with a maximum of two vehicles, only if there are two drivers. The Lease sets a maximum of two vehicles for any one home. More than two vehicles are restricted by the Lease.
Home Features:
Siding: Gray
Shutters: Black
Walls: Dry wall and Vinyl on Gypsum (VOG)
Cabinets: Wood
Backsplash: Laminate
Kitchen & Bathroom Countertop: Laminate
Appliances: Stainless Steel
Flooring: Vinyl
Roof: Shingles
Additional Features:
- Energy Star Rating, with upgraded insulation in walls, floors and ceiling
- Programmable Thermostat and sealed ductwork system
- High Efficiency Central Heating and Cooling system
- Gas furnace 60 btu direct vent
- Perimeter located floor vents
- Whirlpool appliance package: Gas Range, Dishwasher, 18 cu ft Refrigerator, Microwave over range
- Wood door and wood stiles kitchen cabinets with adjustable shelves
- Glass tile backsplash in kitchen
- Laminate countertop with crescent edging
- Stainless steel farm sink with gooseneck single lever faucet
- 40 Gal electric hot water heater
- Full Linoleum flooring throughout house
- Low E thermal Windows
- 100 AMP electric panel
- LED recessed lighting throughout the home
- Ceiling fan with light in living room
- 2 Cable TV Jacks: one in the bedroom, one in the living room
- One piece 60" shower in hall bath with 2 grab bar
- Comfort Height Toilet
- Stackable washer dryer
- Two custom built wood stairs
- Concrete patio length of home
- Concrete foundation system
- Heat tape and insulation on the water line
- Seamless gutters and downspouts
- Andersen glass storm doors at front and rear doors
- Full vinyl skirting with top and bottom trim
- 6' by 6' metal insulated shed
- 5 year transferable warranty remaining on Champion 7 Warranty
- ADT Alarm and cameras
- Awning the length of the home $9000 value
- Weed wacking protection on bottom of skirting
Services
There is a monthly lot fee that includes Water, Sewer, Taxes, and Street Snow Plowing.














































